Ga direct naar de hoofdinhoud
FLoratuin
vandaag besteld 2 a 5 dagen geleverd .
alleen op de groot artikelen is soms langer levertijd op .
FLoratuin
Home
over ons
Fotogalerij
webshop
Veranda overkapping
blokhut-tuinhuisjes overkapping douglas
ADEZZ DESIGN
Graszoden meststof onkruid insecten
Bestrating Grind Zand tegels
zwembaden /onderdelen
wellness sauna hottub zwembaden
Speeltoestellen en dierenverblijven
beton/hout Schutting Tuinhout palen
Tuinmeubels schaduwdoek
kunstgras
Decoratie
planten bakken potten
contact
Zoeken
Home
»
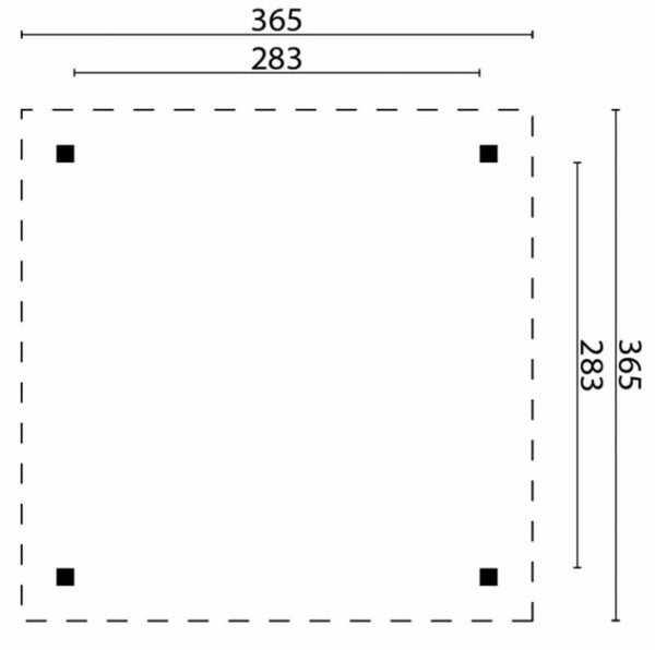
Houten Prieel Kreta geschaafd Lariks Douglas 365x365cm plat dak
Houten Prieel Kreta geschaafd Lariks Douglas 365x365cm plat dak
€ 2.995,89
Aantal
Uitgeschakeld
Dakbedekking:
5 x Easyroofing zelfklevend dakbedekking
Verankering:
4 x Paalpunten / paalhouder met punt 12.1x12.1x90cm
4 x Snelbeton 25kg
Toebehoren diversen:
3 x Zwarte kit voor dakshingles dakleer
Delen
Deel
Share
Delen